内科募集!皮膚科2021年6月・整形外科2021年9月開業決定、名取医療モール
|
|||||||||||
診療科目 | 内科 | ||||||||||
---|---|---|---|---|---|---|---|---|---|---|---|
エリア | 宮城県 | ||||||||||
|
|||||||||||
メリット | 幹線道路沿い・人口増エリア・商店街近接・住宅街近接・子育て世代多い・高齢者多い・新築ビル・医療専用ビル・フリーレント検討可 |
物件情報
物件タイプ | 医療モール |
---|---|
診療科目 | 内科 |
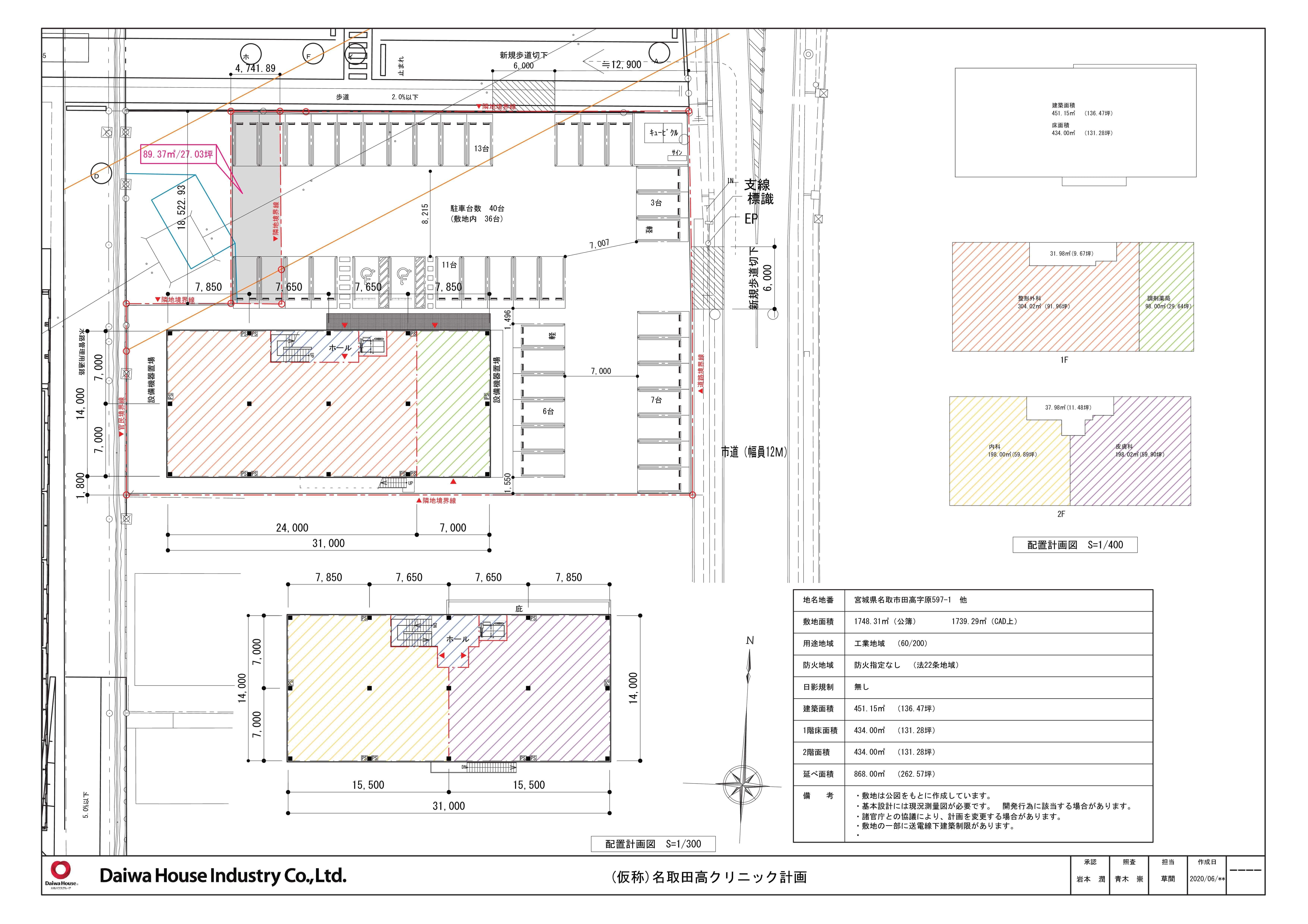
所在地 | 宮城県名取市田高字原597-1 地図を見る |
最寄駅 |
東北本線「名取駅」徒歩11分 最寄りバス停徒歩4分 |
PR |
・開業時期はご相談に応じます |
募集フロア
その他物件情報
○募集科目:内科
・住 所: 宮城県名取市田高字原597-1 他 (ヨークベニマル名取西店・ホーマック名取店 隣接)
・面 積: 1F:整形外科 約92坪 1F:薬局 約30坪 2F:皮膚科 約60坪 2F:内科 約60坪
・形 態: 賃貸(スケルトン渡し)
・駐車場: メディカルビル共有で40台程度 (ホーマックや動物病院など、近隣の駐車場は追加で交渉中)
・家 賃: 賃料:7,000円/坪(税別) 共益費:1,000円/坪(税別) 合計:8,000円/坪(税別・駐車場40台込み)
・備考:
1、ヨークベニマル名取西店・ホーマック名取店に隣接する物件です
2、1階が整形外科・薬局 2階が皮膚科・内科の予定です
3、開業時期はご相談に応じます(皮膚科・薬局は2021年6月、整形外科2021年9月、開業予定)
4、新築ビルであり、ストレッチャー対応のエレベーターも完備されています
5、ヨークベニマル・ホーマック共に土日は買い物客で混雑し、近隣住民からも非常に認知度が高い物件です
会社情報
企業名/医院名 | いまいメディカル |
---|---|
PRコメント | 仙台市・福島市・盛岡市及び近郊都市にて、調剤薬局を20店舗経営しております「いまいメディカルグループ」と申します。我々はここ10年で20店舗を新規出店しました。20店舗のうち大半の店舗は、新規開業希望のドクターと二人三脚で物件探しから始め、ドクターの開業準備をサポートしながら一緒に新規出店してまいりました。1年間で数店舗を出店させておりますので、上記エリアにおきましては常に新しい様々な情報を持ち合わせております。ご開業には戸建てタイプ、ビルテナントタイプ、土地からの購入、土地のみの賃借、建て貸しなど、色々なケースや考え方があると思います。経験豊富な我々であれば、きっと先生方のニーズに応えられると信じております。まずは先生方のビジョンやお考えをお聞かせくださいませ。どうぞ宜しくお願い致します。 |
代表者名 | 今井 亮 |
本社所在地 | 宮城県仙台市太白区大野田4-20-14 IMGビル2F |
従業員数 | 130人 |
資本⾦ | 13,000,000円 |
事業内容 | 調剤薬局の経営 クリニック新規開業のコンサルティング |
Webサイト | http://www.imai-medicalsupport.jp/ |
お探しの物件は見つかりませんでしたか?
物件お問い合わせには会員登録が必要です